中文   |    EN

产品中心

产品搜索
联系我们

地址:江苏省无锡市锡山区羊尖镇胶阳东路139号

联系人:钱先生

电话:0510-68229610

手机:138 1208 3566 / 130 7556 6506

传真:0510-68229612

邮箱:info@chinateneng.com
sales@chinateneng.com

流化床气化炉气化发电系统

banner.jpg

【核心定位】

Powermax深耕生物质能源领域30余年,2003年自主研发CFBG系列生物质循环流化床气化炉。该系统适配细颗粒农林废弃物,具备原料适应广、产气稳定、清洁环保、经济高效等优势,适用于工业、农业及园区能源转型。

【技术优势】

广泛适应性

专为原料粒径≤8-15mm,水分要求不超过20%(WB)细颗粒生物质设计,可高效处理稻壳、秸秆、木屑、木材边角料、甘蔗渣、玉米芯等多种农林废弃物。

稳定产气

系统产气量与燃气热值稳定可控,单炉额定功率覆盖200-3000kW全功率段,生物质消耗量200-5400kg/hr,对应产气量500-9000Nm³/h,燃气热值可达1200-1300Kcal/Nm³,可燃气体成分占比优化(CO:12~18%;CH₄:4~8%;H₂:3~7%),为后续发电提供高品质、持续稳定的燃气源,适配规模化发电需求。

清洁低排

搭载干式气体净化系统,含 ESP 静电除尘、旋风分离、布袋除尘等装置,高效脱除燃气粉尘与焦油,保障机组稳定运行。气化工艺低氮、低硫排放,大幅减少化石能源碳排放,全流程环保友好,满足严苛排放要求。

● 灵活高效

系统采用PLC 自动化控制,可灵活搭配燃气发动机、燃气轮机、余热回收锅炉,支持并网 / 离网运行。高温废气余热可制成蒸汽、热水,实现能源梯级利用。单炉独立或多炉并联运行,覆盖几百 kW~几十 MW规模,满足发电、供热需求,适配生物质电厂、园区电站、农林废弃物集中处理中心等多场景。

● 经济适用

CFBG 气化发电系统占地小、配置灵活,小型项目即可盈利;以低成本农林废弃物为原料,副产物生物炭可资源化增值,显著降低运营成本。


【流程图】

CFBG系列循环流化床气化发电系统遵循气化-净化-发电全流程一体化设计,技术成熟、运行稳定:

1.生物质气化:细颗粒生物质在循环流化床气化炉内完成限氧热解气化,高效转化为高品质合成气;

2.成气净化:经旋风除尘器、电捕焦油器、管式除尘器等多级干式净化,去除杂质,保障燃气品质;

3.气发电:洁净燃气送入搭载西门子高效发电机、欧洲先进控制系统的中速燃气发电机组发电,余热按需回收利用,实现能源最大化利用。

4.系统灰分为干灰型,处理便捷,全流程设备布局合理、操作简单,可实现24小时连续稳定运行,维护成本低,为项目长期稳定运营提供保障。


pyrogreen


【技术参数】

CFBG系列生物质气化发电系统技术规范
产品型号200CFBG400CFBG500CFBG600CFBG800CFBG1000CFBG1200CFBG1500CFBG2000CFBG3000CFBG
额定功率(kW)20040050060080010001200150020003000
额定频率(Hz)50/60 HZ
额定电压(V)220/400/440/6300/6600/11000/13800
气化炉型号CFBG200CFBG400CFBG500CFBG600CFBG800CFBG1000CFBG1200CFBG1500CFBG2000CFBG3000
气化炉类型循环流化床(CFBG)
生物质水分要求≤20%(WB)
生物质尺寸要求≤8-15mm
生物质消耗量(Kg/hr)200-360400-720500-900600-1080800-14401000-18001200-21601500-27002000-36003000-5400
天然气产量(Nm3/h)500-6001000-12001250-15001500-18002000-24002500-30003000-36003750-45005000-60007500-9000
灰分类型干灰型
气体净化类型干式气体净化系统
气体热量1200-1300Kcal/Nm3
气体成分CO: 12~18%;CO2: 10~16%;CH4: 4~8%;H2: 3~7%;CnHm:1~1.4%;O2:0.5~1.2%;N2:54~60%
发电机组型号100GFLS400GFLS500GFLS300GFLS400GFLS1000GFLS400GFLS500GFLS1000GFLS1000GFLS
发电机组数2套1套1套2套2套1套3套3套2套3套


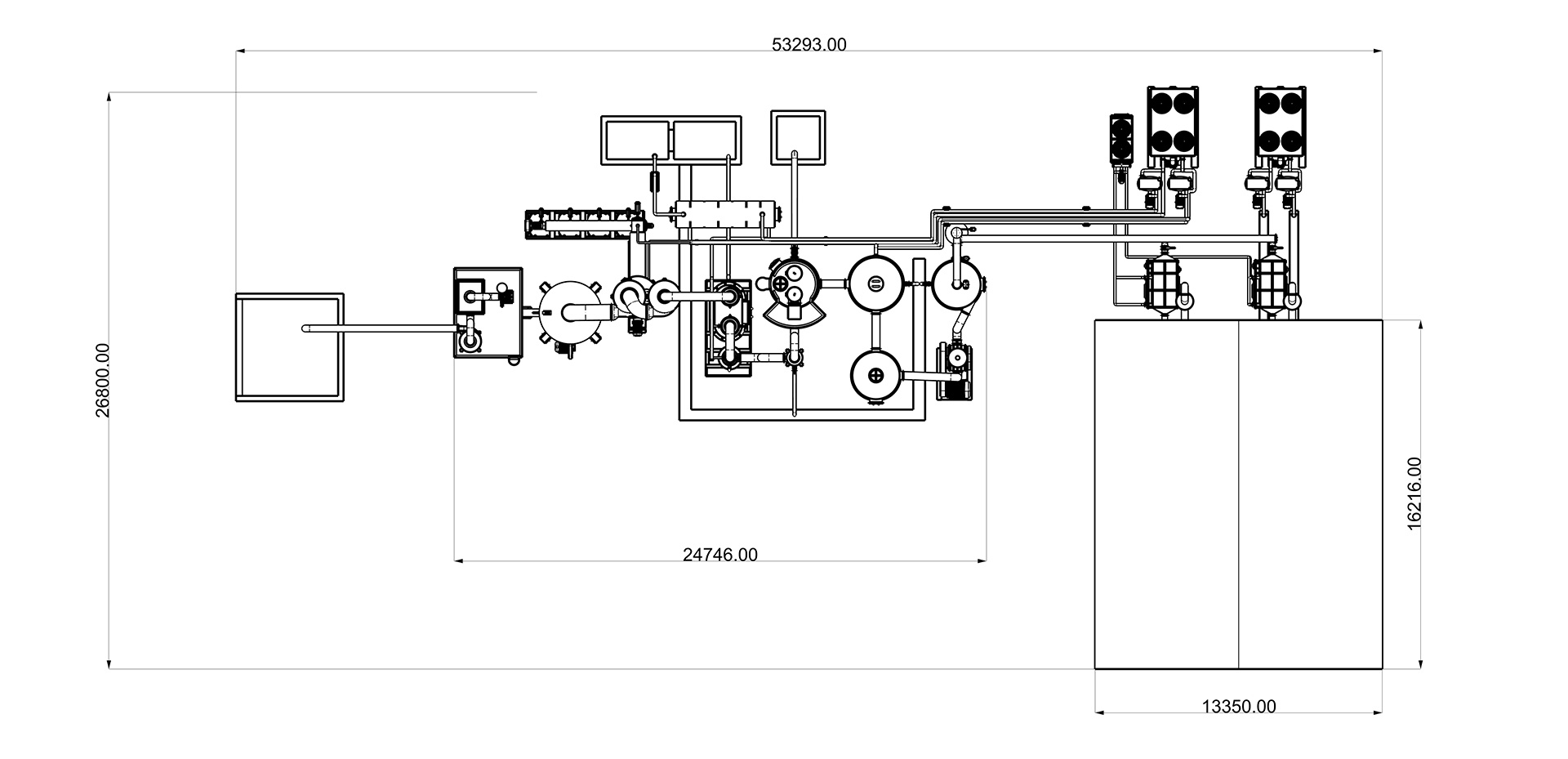
【系统尺寸】

- 正视图

cfbc1_看图王.jpg

- 顶视图

CFBC2_看图王.jpg

全球项目落地】

自2003年研发成功以来,该系统已推广至全球多个国家和地区,落地众多标杆项目,系统稳定性与高效性广受认可。2010年获得欧盟出口许可CE证书,达到欧盟技术标准。

· 多个流化床气化发电项目:

cfbg项目照片_compressed.png



  



Messages

Product Catalog